«Я не знаю, какого точно года постройки этот дом — он из ряда тех, что называют сталинскими, — рассказывает Максим. — Мы переехали в него с родителями в 1979 году, летом. Аккурат перед тем как я пошел в школу, в первый класс. До этого мы жили в коммуналке на Смоленке, и эта квартира, как ни странно, тоже была коммунальной. Когда мы в первый раз в нее попали, я был ошарашен размерами: после нашей комнаты она казалась мне огромной. Эти высоченные потолки, две комнаты, огромный туалет… Помню, заглянул туда и закричал родителям: “Ой, да тут всей семьей можно поместиться”. Из этой квартиры я пошел в школу, потом — в институт. И только после института впервые поменял место жительства. Ремонт здесь последний раз делали году в 1995-м, как раз когда я съехал от родителей».

О проекте
Место: Москва, Краснопресненская набережная
Год: 2017
Размер: 2 комнаты
Кто здесь живет: квартира Максима Виторгана и Ксении Собчак, здесь будут останавливаться друзья семьи
Автор проекта: Руслан Кирничанский
Интересные факты: ремонт в квартире начался много лет назад. Первый интерьерный дизайнер — Анна Марик— успела родить двойню и отойти от дел. Работу над интерьером завершали при активном участии Houzz и другого архитектора
Фото: портрет — Абдулл Артуев; интерьерная съемка — Дина Александрова, стилист — Татьяна Гедике
Максим Виторган: «Для меня едва ли не самое ценное в этой квартире — это виды. Например, из кухни на родной двор. Конечно, он тоже сильно изменился, но хотя бы спортивная площадка, где мы играли на квас в футбол, осталась той же. Вообще, эта квартира меня с детства сильно разбаловала: шикарный вид на гостиницу “Украина”, на реку. Теперь вид из окна — очень важный для меня момент при выборе жилья.
Родители въехали в эту квартиру, когда им было по 40 лет. Помню, мы получили квартиру на Бабушкинской и ездили смотреть на совершенно пустынный район: кругом одни новостройки, все в грязи, никакой «инфраструктуры» не существовало. А потом мама, путем каких-то невероятных обменов, нашла эту коммуналку на Краснопресненской и расселила ее».

На фото: эскиз архитектора Руслана Кирничанского с финальной расстановкой мебели и цветовым кодированием — оттенок дивана повторяется в аксессуарах других комнат
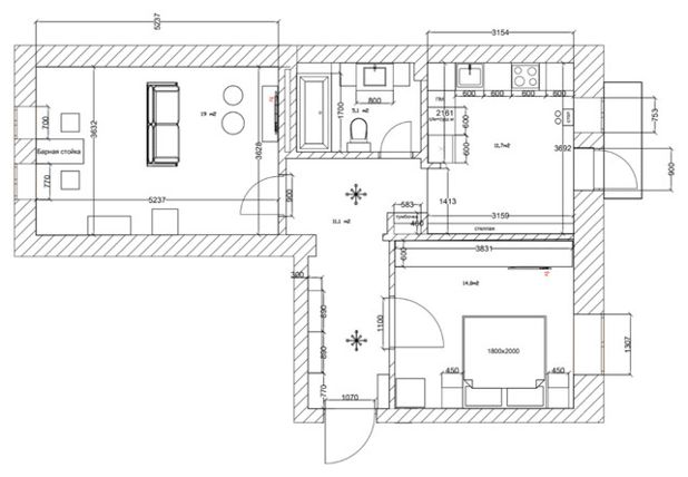
Площадь спальни примерно равна размерам гостиной (16 кв.м), и если смотреть только на план, логично было бы поменять назначение комнат в ходе ремонта — передвинуть кровать в самую дальнюю от входа комнату. Но нужно еще учитывать ориентацию квартиры: спальня и кухня выходят окнами в тихий двор, а гостиная — на набережную и закат. Нынешнее назначение комнат виделось архитектору и владельцам самым оправданным.

На фото: гарнитур «Кухни Мария»; холодильник Gorenje; светильник Flight от Centrsvet; декор — подсвечник из стекла и металла Estello и кактус из металла Aneko — от La Redoute Interieurs; сервировка посуды и статуэтка мопса — от Home Concept; краска для потолков от Kansai
Максим Виторган: «Сложности на этапе ремонта? Да, были! Все длилось очень, очень долго. Строили в сталинские времена основательно, надолго, но уж очень неровно. Выпрямить стены в этой квартире — практически неподъемная задача. Мы останавливали ремонт на какое-то время, потом начинали заново: по штукатурке снова шли трещины. Все было непросто».
Ремонт хозяева начинали самостоятельно, без плана и проекта. Сменили несколько строительных бригад. В тот момент, когда Houzz попросили помочь, черновая отделка была практически завершена — начинать все заново у владельцев не было моральных сил. Да и бюджет проекта не предполагал капитального вмешательства. Важно было сделать все емко, в режиме разумной экономии — и наконец-то закончить ремонт.

Ксения Собчак: «Новая история квартиры закрутилась вокруг комода, который я увидела в Instagram. Русский дизайнер, ручная работа, невероятного возраста дубы из Ижевска, которые 16 лет сушили на подворье одного из местных мастеров — обожаю такие вещи с историей. А еще это комод из коллекции в духе 1950-х, то есть времен постройки дома. Мне показалось это созвучным атмосфере семейной квартиры».
Максим Виторган: «У входа в комнату (практически на том месте, где сейчас стоит светильник) был маленький коридорчик: перемычка между этой квартирой и двумя другими — из соседнего подъезда. Небольшое пространство, буквально метр на метр. Помню, что в нем был мусоропровод, и мы постоянно складировали там какие-то вещи. И папа в шутку рассказывал мне маленькому, что в этом коридоре когда-то скрывался дедушка Ленин. Ну а если серьезно, то по другую сторону коридора в одной из квартир какое-то время жил Булат Окуджава».

Максим Виторган: «Нынешняя гостиная была по сути спальней моих родителей. Во времена моего детства примерно на этом же месте стоял телевизор Рубин Ц-202, цветной. Не сразу, конечно — с конца 1980-х».
Тумбу под телевизор архитектор заказывал специально, чтобы поддержать идею комода. Не скопировать дословно, а именно поддержать мотив квадратных ящиков и отверстий. Чтобы не было эффекта «гарнитура», взяли ту же самую породу — дуб, но немного иного оттенка. В результате комод, тумба, паркет отлично работают вместе со стойкой из американского ореха (предыдущее фото). За счет нюансов тона интерьер смотрится богаче.

